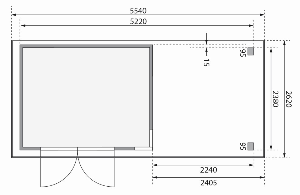
Karibu Kerko 5. Nagyméretű lapostetős kerti ház, modern sarokablakkal, bővítménnyel/terasszal, terra szürke színűfából 522 cm x 246 cm
15
1 018 900 Ft
866 065 Ft